大江戸線『光が丘』駅 歩11分 賃料

【新築賃貸マンション】

■分譲タイプ■1K■即入居可         

物件番号

654

交通 大江戸線『光が丘』駅 歩11分
所在地 練馬区高松5丁目 家賃 円より
種目 マンション 共益費
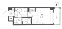
間取 1K 礼金 2ヶ月
専有面積 21.40〜21.75u 敷金 2ヶ月
構造 RC造 更新 1ヶ月
階/階建

6階建

保証金  
築年月 2007/7 償却  
入居 即可 取引態様 仲介
火災保険 要加入 契約期間 2年間
備考  
                     

     

               

     

お電話でお問合わせの方は TEL 03-3998-8411 鈴美住宅までお気軽にご連絡ください。
この物件のお問い合わせは以下のフォームに記入後、最後に送信ボタンを押して下さい。
E−mail(必須) 半角英数でお願いします
お名前   (必須)
住所
電話番号  (必須)
問い合わせ内容

 

←フォーム送信    


物件は成約済み、売却済あるいは中止となる場合があります。
詳細情報、物件の有無はお問い合わせ下さい。
図面と現況が異なる場合は現況優先となります。


もどる